Контроллер СКУД Gate-8000-Паркинг

В наличии
Комплектация

Спецконтроллер Gate-8000-Паркинг (Gate-P-4000-Паркинг верс.2) для организации двунаправленного автомобильного проезда со светофорным регулированием. БЕЗ встроенного радиоканала. Два режима работы. Интерфейс считывателей Wiegand-26.

Контроллер Gate-8000-Паркинг Вер.2 предназначен для организации удобной и безопасной работы двунаправленной точки проезда транспорта со светофорным регулированием.

Специфика сферы применения данного контроллера:

  • однополосный двунаправленный проезд;
  • потребность контроля  и учета направления проезда;
  • потребность светофорного регулирования проезда.

Главными отличиями контроллера Паркинг Версии 2 от предыдущей Версии 1 являются отсутствие встроенного радиоканального считывателя, а также наличие двух режимов работы со своей схемой подключения и логикой проезда. Выбор режима работы осуществляется положением джампера SA7 на плате.

2. Общие режимы работы и особенности контроллера Паркинг
2.1. Особенности Первого режима контроллера Gate-8000-Паркинг Вер.2:
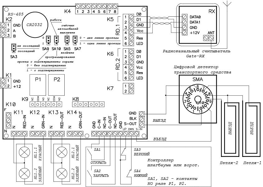
Первый режим  предусматривает работу с одним считывателем идентификаторов и контролем двух линий въезда/выезда. Данный режим целесообразен в случае использования считывателя, не обеспечивающего определение направление движения транспорта: радиоканальные считыватели Gate-RX (чтение радиобрелоков Gate-TX), Gate-RX-Duo (чтение радиобрелоков Gate-TX-Duo и номеров телефонов) или иные аналогичного типа. Для подключения внешнего считывателя используется первый вход для считывателей на плате контроллера (колодка RD.1).  Для определения направления движения и обеспечения заданного алгоритма проезда используются две линии въезда/выезда, реализованные на фотоэлементах или э/м петлях. Алгоритм работы точки проезда в первом режиме описан ниже и совпадает с алгоритмом работы контроллера Паркинг Версии 1.
2.2. Особенности Второго режима контроллера Gate-8000-Паркинг Вер.2:
Второй режим  предусматривает работу с двумя считывателями идентификаторов (обеспечивающими определение направления движения: въезд или выезд) и контролем одной линии проезда. В этом случае могут использоваться считыватели меток дальнего действия семейства KeyTex-Gate или любые иные считыватели других типов идентификаторов (карты, мобильные идентификаторы, автомобильные номера и т.д.) с обеспечением определения направления движения. Для подключения считывателей используются оба входа для считывателей на плате контроллера (колодки RD.1, RD.2). Направление движения в данном режиме определяется считывателем. Факт проезда определяется линией проезда (как правило, это фотоэлементы в створе ворот или шлагбаума). Алгоритм работы контроллера и точки проезда во втором режиме описан ниже.
2.3. Основные особенности контроллера Gate-8000-Паркинг:

  •    в Первом режиме обеспечена защита системы от случайного чтения идентификаторов в пассивном режиме (линии въезда/выезда свободны) путем блокировки входа контроллера;
  •    непосредственное подключение и контроль датчиков линий въезда и выезда (ф/элементы, э/м петли), для определения направления движения и факта проезда;
  •    возможность подключения и учета состояния концевых датчиков открытия/закрытия ворот;
  •    непосредственное подключение и управление двумя двухцветными светофорам (~220В) с реализацией особого информативного алгоритма работы светофоров при организации проезда;
  •    возможность включения и контроля счетчика автомобилей на внутренней территории с заданием допустимых границ и ограничением доступа;
  •    возможность включения и реализации особого режима проезда с подтверждением охранником;
  •    раздельные сигналы управления преграждающим устройством: реле1- открытие, реле2 - закрытие;
  •    в Первом режиме имеется возможность настройки и реализации особого подрежима группового проезда без промежуточных закрытий преграждающего устройства. 

2.4. Дополнительные опциональные возможности технологии Паркинг:

  • аппаратная организация запрета повторного проезда в рамках одного контроллера;
  • программная организация запрета повторного проезда в рамках группы контроллеров;
  • фотоверификация проезда на АРМ с подтверждением проезда с брелока охранника;
  • программный контроль времени нахождения автомобиля на внутренней территории.

  • Бренд: GATE
  • Тип [TYPE]: Для турникетов
  • Напряжение питания: 11,4 В – 14,0 В
  • Потребляемый ток: 100 мА - 150 мА
  • Количество записей в журнале событий: 8167
  • Рабочая температура: от –30° до +50°С
  • Относительная влажность: 90%
  • Размеры (ШхВхГ): 310х265х130 мм
  • Интерфейс Wiegand: Wiegand-26, Wiegand-48 (Wiegand-Автомат